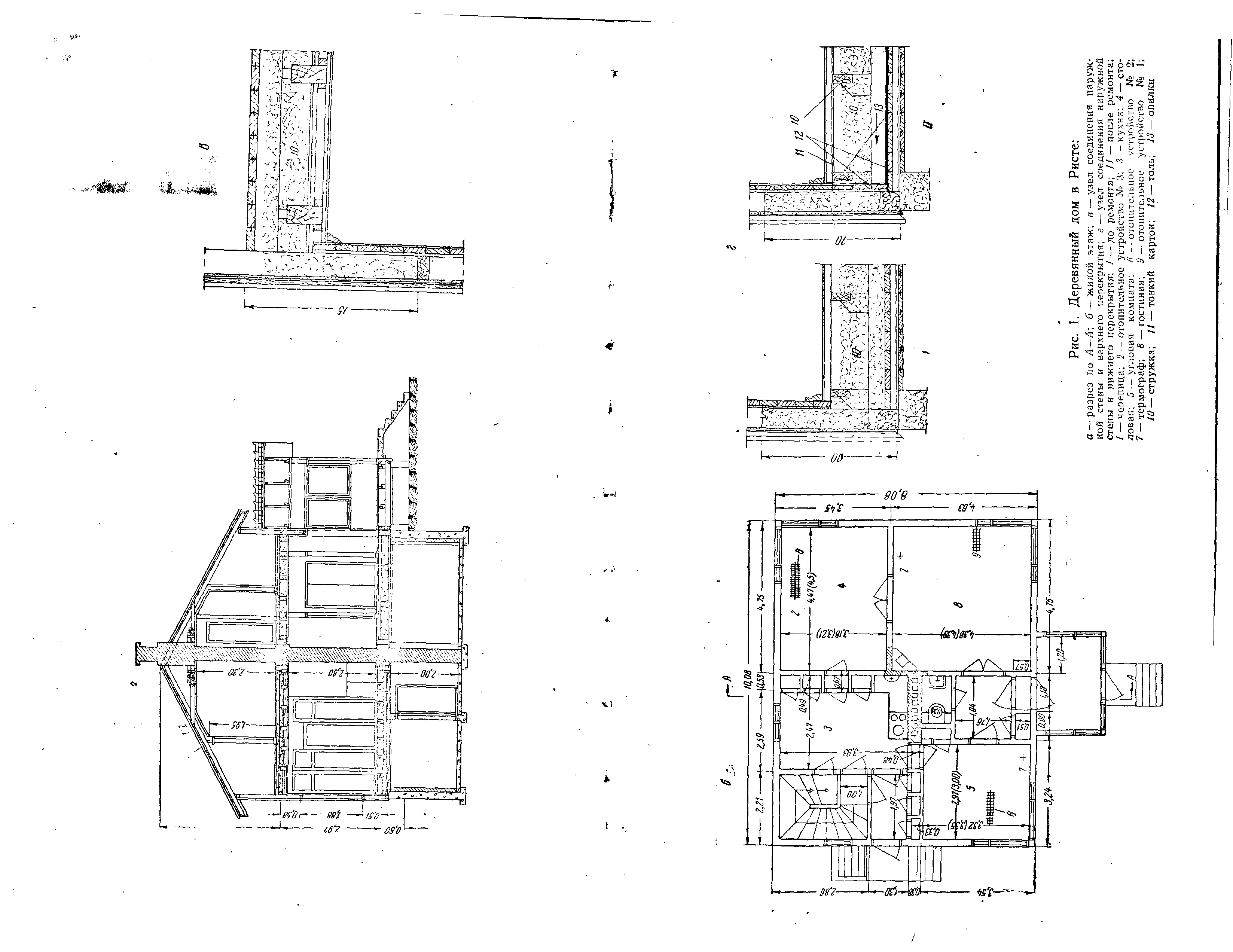
"Сравнительное исследование малых зданий" - читать интересную книгу автора (Рахту)